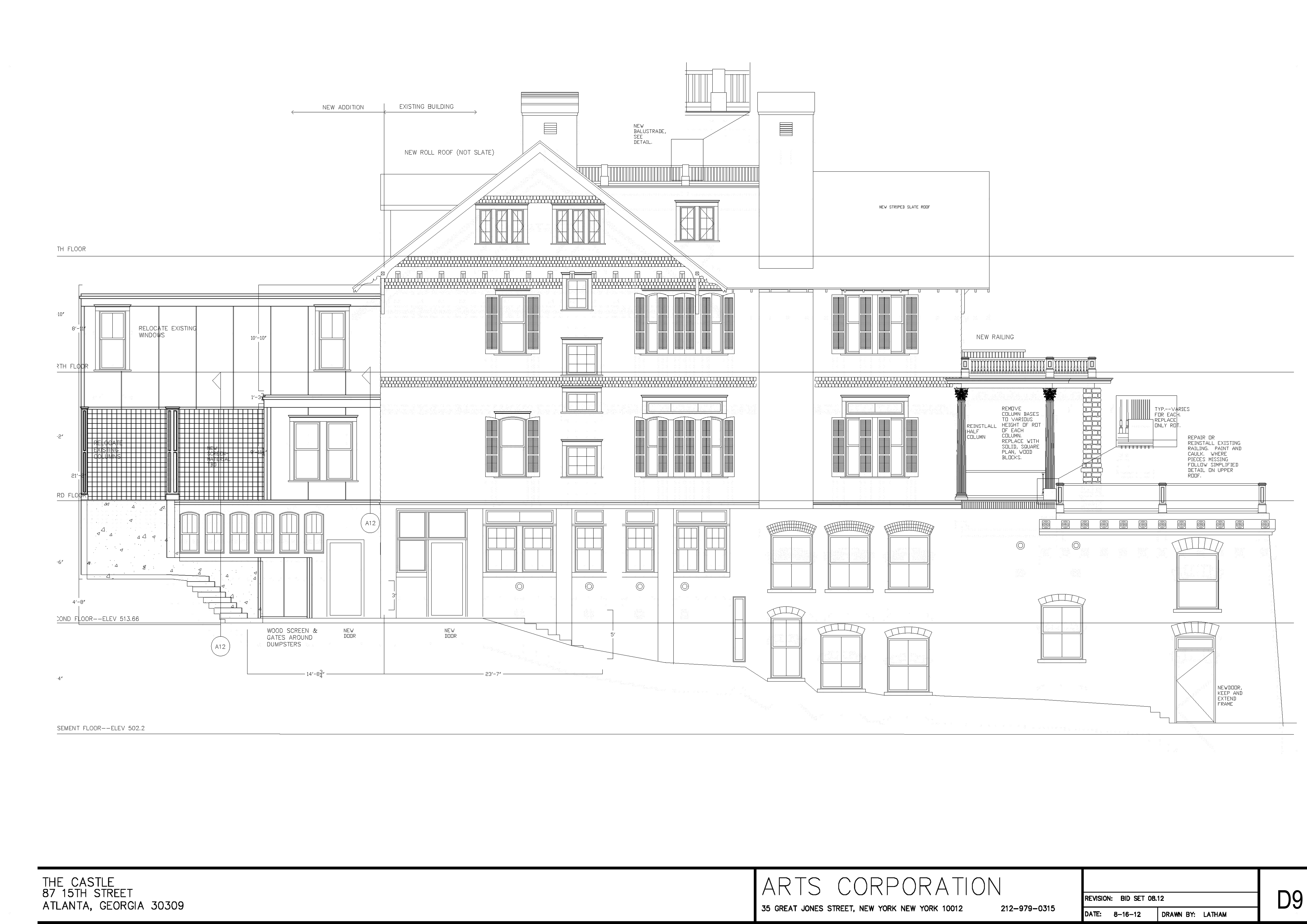
The sharpness of the Historic Grand Staircase is emphasized, rendered in a contemporary Arts Corporation color way.The East Elevation shows the complex interplay of the five historic levels, joined at the rear with a new addition for service and circulation.
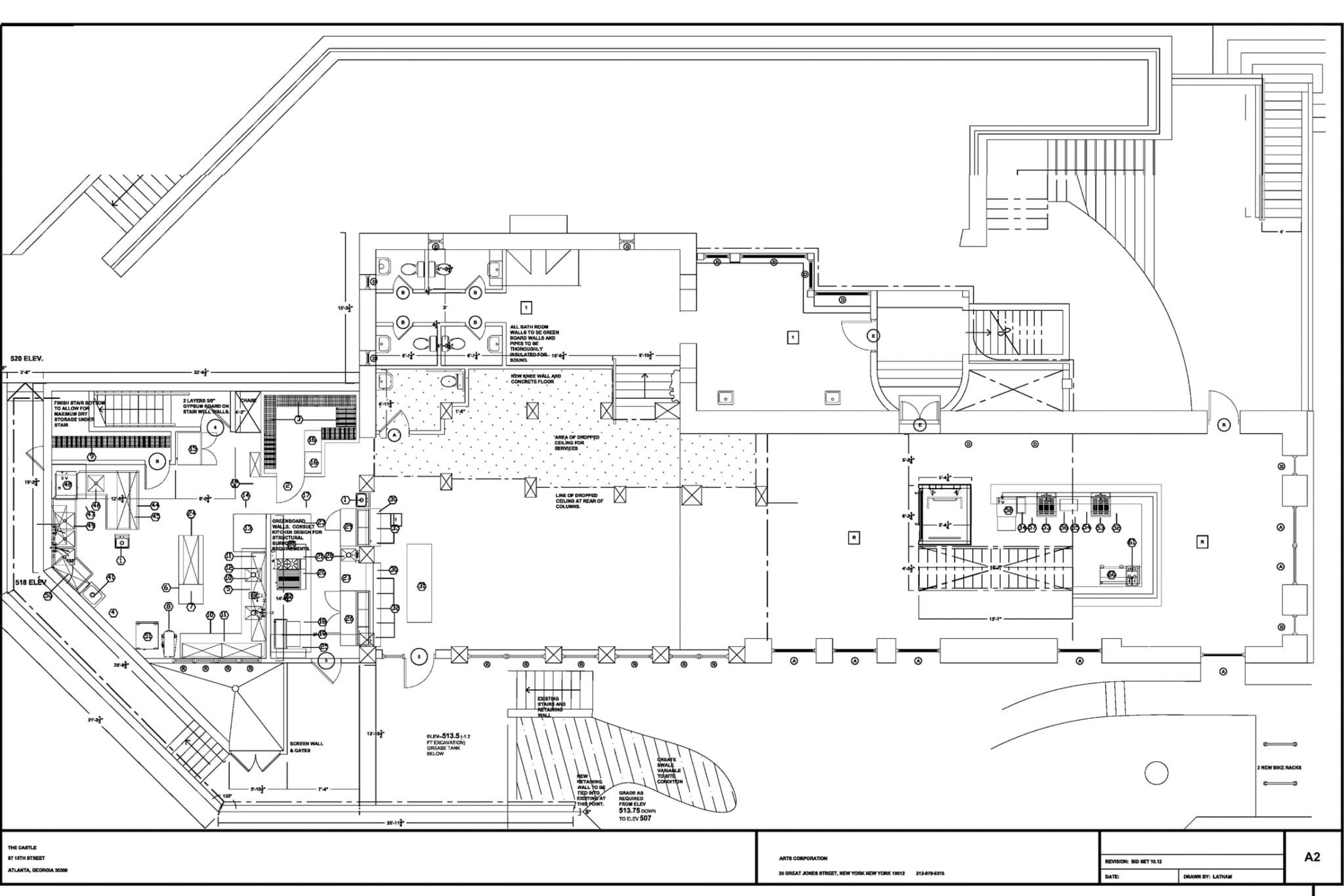
The second floor accomodates the dining room and a new, state of the art commercial kitchen in the new addition.
The historic condition was documented by photogapher Jen Campbell and became a regular advertisement in Art Papers.A manual elevator was added to connect the three public levels.
An Event on the porch level, "The country in the City," as original builder Ferdinand McMillan imagined.Upper level bedrooms are combined into suites.Historic building features and materials were meticulously preserved. Photo Credit: Jen Campbell.
Next projectNext projectNext projectNext projectNext projectNext project
Next projectNext projectNext projectNext projectNext projectNext project